Bartleys Estate Agents - Property details

Skip to content
27/10/2025
Featured property SSTC

The Grove, Hampton in Arden, Solihull, B92 3 bedroom semi-detached house SSTC in Solihull

£650,000

3 bedrooms, 2 bathrooms.


Tenure : Freehold
Council Tax Band :
Building Insurance : Not Set

Property reference: SOL-GGY127XEZV
Print property

Property overview

Introduction

*OPEN DAY SATURDAY 1ST APRIL 12-2.30PM (BY APPOINTMENT ONLY)* A stunning double fronted semi-detached Cottage is situated on 'The Grove', a private road located in the desirable village of Hampton-In-Arden. The property has undergone a complete transformation by the current owners and now has a stunning Border Oak family room & kitchen extension that is the hub of the house. The spacious accommodation flows seamlessly from the entrance lobby that leads to a dining hall with wood burning stove, cosy sitting room with log burner, playroom/office, inner hall with utility & separate cloakroom/wc leading into the fabulous open plan kitchen extension with stunning Oak framed family room. To the first floor there are three double bedrooms, ensuite and a luxury family bathroom . Outside there is a detached office & gymnasium and an extensive most private large southerly garden. There is a shared driveway that enables off road parking for several vehicles. No Chain

Description

*OPEN DAY SATURDAY 1ST APRIL 12-2.30PM (BY APPOINTMENT ONLY)*

A stunning double fronted semi-detached Cottage is situated on 'The Grove', a private road located in the desirable village of Hampton-In-Arden. The property has undergone a complete transformation by the current owners and now has a stunning Border Oak family room & kitchen extension that is the hub of the house. The  spacious accommodation flows seamlessly from the entrance lobby  that leads to a dining hall with wood burning stove, cosy sitting room with log burner, playroom/office, inner hall with utility & separate cloakroom/wc leading into the fabulous open plan kitchen extension with stunning Oak framed family room. To the first floor there are three double bedrooms, ensuite and a luxury family bathroom . Outside there is a detached office & gymnasium  and an extensive most private large southerly garden. There is a shared driveway that enables off road parking for several vehicles. No Chain


Hampton is a charming and most popular village surrounded by open green belt countryside, yet standing just four miles from Solihull Town Centre. The village has local inns, Outstanding Ofsted rated George Fentham primary school, historic church with Norman origins, doctors surgery, an active sports and tennis club, gym and a railway station which links Birmingham New Street and International with London Euston. Junctions 5 and 6 of the local M42 lead to the Midlands motorway network, centres of commerce and culture, the NEC, International Airport and Railway station.


APPROACH

Via a lawned fore garden with mature shrub borders with a paved pathway, leading to front door. To the side of the property is a driveway enabling off-road parking for several vehicles.

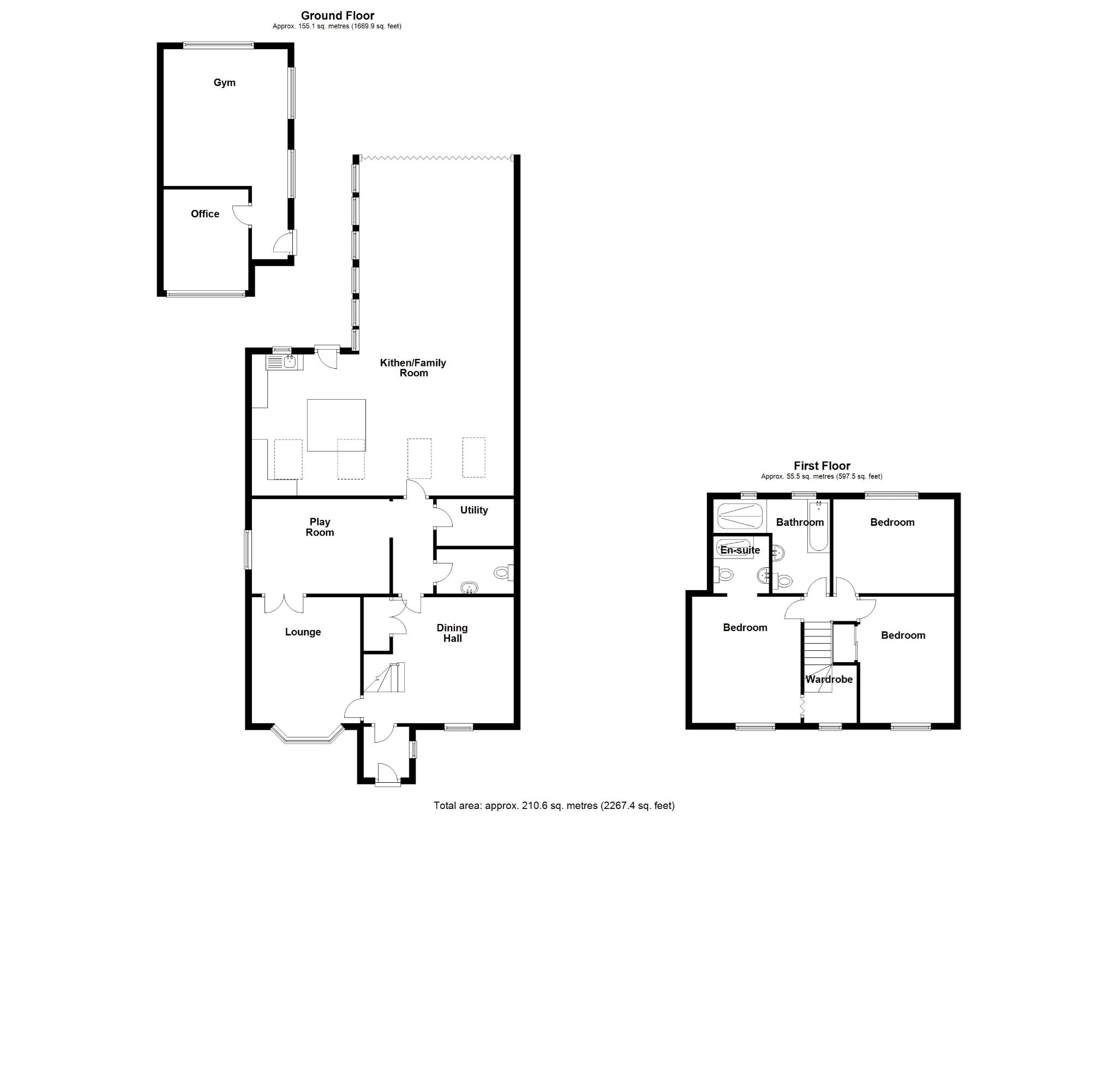
ENTRANCE HALL

A cottage style front door leads to an inner porch with a stained glass UPVC double glazed window to the side aspect, quarry tiled floor, and glazed door to:-

DINING HALL

10' 4" (3.16M) X 12' 2" (3.7M)

Cast iron wood burning stove, wooden flooring, single panel, radiator, ceiling, light point, stairs, rising to first floor landing, doors radiating off to sitting room, inner hallway, understairs storage cupboard, UPVC double glazed window to the front aspect.

SITTING ROOM

17' 9" (5.4M) X 10' 10" (3.3M)

Cast iron woodburning stove with exposed rustic brick fireplace, TV point, ceiling light point, two single panel, radiators, UPVC double glazed window to the front aspect, glazed double doors to playroom/study:-

INNER HALLWAY

Double panel radiator, quarry tiled floor, recessed spotlights, doors to cloakroom/WC, utility, playroom/ office.

CLOAKROOM / WC

Low-level flush WC, hand wash basin with complementary ceramic tiling to walls and floor, quarry tiled flooring, recessed spotlights.

STUDY / PLAYROOM

10' 2" (3.1M) X 8' 10" (2.7M)

Wood-effect flooring, ceiling light point, UPVC double glazed window to the side aspect, glazed double doors to sitting room.

UTILITY

6' 3" (1.9M) X 4' 11" (1.5M)

Space and plumbing for a washing machine and additional appliances, wall mounted combi boiler, recessed spotlights.


STUNNING KITCHEN / FAMILY ROOM

34' 5" (10.5M) X 24' 3" (7.4M)

A beautifully extended kitchen & family room with a stunning “Border Oak” vaulted family room that is fitted with a range of shaker-style wall and base units with granite worksurfaces & contrasting central Island, complementary ceramic tiling to splashback’s, lime stone effect tiled floor with under floor heating, integrated Samsung oven, integrated Bosch dishwasher, Bosch fridge, provision for a gas range cooker, extractor fan, mirror splash back, recessed halogen spotlights, dining area, extended family lounge with exposed Oak beams, the kitchen area has 4 x Velux skylights a UPVC double glazed window that allows natural to flood in and door to the garden, the lounge area has grey composite windows and bifold doors leading onto a courtyard style patio



FIRST FLOOR LANDING

Ceiling light point, doors radiating off to bedroom one, bedroom two, bedrooms three and family bathroom.

BEDROOM ONE (FRONT)

12' 10" (3.9M) X 9' 2" (2.8M)

Single panel radiator, ceiling light point, loft access, built-in walk-in wardrobe, UPVC double glazed window to the front aspect.

ENSUITE

Contemporary ensuite with low level, flush WC, large shower enclosure with chrome thermostatic shower unit, hand wash basin with vanity cupboard, complementary ceramic tiling to walls and floors, halogen spotlights, extractor fan.

BEDROOM TWO (FRONT)

11' 6" (3.5M) X9' 10" (3M)

Single panel radiator, two ceiling light points, fitted mirror, wardrobes, UPVC double glazed window to the front aspect.

BEDROOM THREE (REAR)

10' 10" (3.3M) X 9' 6" (2.9M)

Ceiling light point, single panel radiator, UPVC double glazed window to the rear aspect.

FAMILY BATHROOM

Beautiful contemporary suite with low level flush WC, hand wash basin with vanity cabinet, panel bath with Victorian-style chrome shower attachment, separate wet room shower enclosure with mosaic tiled floor, ceramic tiling to walls, chrome thermostatic shower, two obscure UPVC double glazed windows to the side aspect, halogen spotlights, chrome towel radiator.

OFFICE / GYM

The external garage has been converted into an office and gym that is situated adjacent to the garden patio.

OFFICE

11' 2" (3.4M) X 7' 10" (2.4M)

Power, lighting, UPVC double glazed windows to the front and side aspect UPVC double glazed door to the side aspect.

GYM

14' 5" (4.4M) X 11' 2" (3.4M)

Power, lighting and UPVC double glazed windows to the side and rear.

LARGE SOUTH-FACING GARDEN

A paved patio leads to an extensive South-facing garden which is mostly laid to lawn being interspersed with mature trees and shrub lined perimeter that creates a wonderful outside space with a private aspect.

TENURE

We have been advised that the property is Freehold. This is subject to verification by your Solicitor.




Property data powered by Stand Out Property Manager

Mobile link

Scan this QR code to go directly to this property on your phone.

Contact the agent

Features

  • Delightful Double Fronted Cottage
  • Stunning Border Oak Extension
  • Fabulous Extended Open Plan Kitchen
  • Three Double Bedrooms
  • Ensuite & Luxury Bathroom
  • Detached Office/ Gym
  • Extensive Southerly Facing Garden
  • Close proximity to outstanding Ofsted rated George Fentham primary school
  • No Chain
  • *OPEN DAY SATURDAY 1ST APRIL 12-2.30PM (BY APPOINTMENT ONLY)*

Stamp duty estimate

Mortgage calculator

Similar properties

3 bedroom semi-detached house SSTC in Solihull - Photograph 1.
3 bedroom semi-detached house SSTC in Solihull - Photograph 2.
3 bedroom semi-detached house SSTC in Solihull - Photograph 3.
3 bedroom semi-detached house SSTC in Solihull - Photograph 6.
3 bedroom semi-detached house SSTC in Solihull - Photograph 4.
3 bedroom semi-detached house SSTC in Solihull - Photograph 5.
3 bedroom semi-detached house SSTC in Solihull - Photograph 7.
3 bedroom semi-detached house SSTC in Solihull - Photograph 8.
3 bedroom semi-detached house SSTC in Solihull - Photograph 7.
3 bedroom semi-detached house SSTC in Solihull - Photograph 9.
3 bedroom semi-detached house SSTC in Solihull - Photograph 10.
3 bedroom semi-detached house SSTC in Solihull - Photograph 11.
3 bedroom semi-detached house SSTC in Solihull - Photograph 12.
3 bedroom semi-detached house SSTC in Solihull - Photograph 13.
3 bedroom semi-detached house SSTC in Solihull - Photograph 14.
3 bedroom semi-detached house SSTC in Solihull - Photograph 16.
3 bedroom semi-detached house SSTC in Solihull - Photograph 17.
3 bedroom semi-detached house SSTC in Solihull - Photograph 18.
3 bedroom semi-detached house SSTC in Solihull - Photograph 19.
3 bedroom semi-detached house SSTC in Solihull - Floorplan 1.

Arrange a viewing

We treat your privacy seriously. We will never sell your information. We will never pass your information on to third parties without your consent, or use it for any reason other than those you allow.

Contains HM Land Registry data © Crown copyright and database right 2017. This data is licensed under the Open Government Licence v3.0.

Book a free market appraisal

Find out what your home is worth with our free, no obligation property appraisal.