Bartleys Estate Agents - Property details

Skip to content
21/05/2026
Featured property

Danford Lane, Solihull, B91 4 bedroom detached house For Sale in Solihull

£925,000

4 bedrooms, 2 bathrooms.


Tenure : Freehold
Council Tax Band :
Building Insurance : Not Set

Property reference: SOL-1JS2152X1DG
Print property

Property overview

Introduction

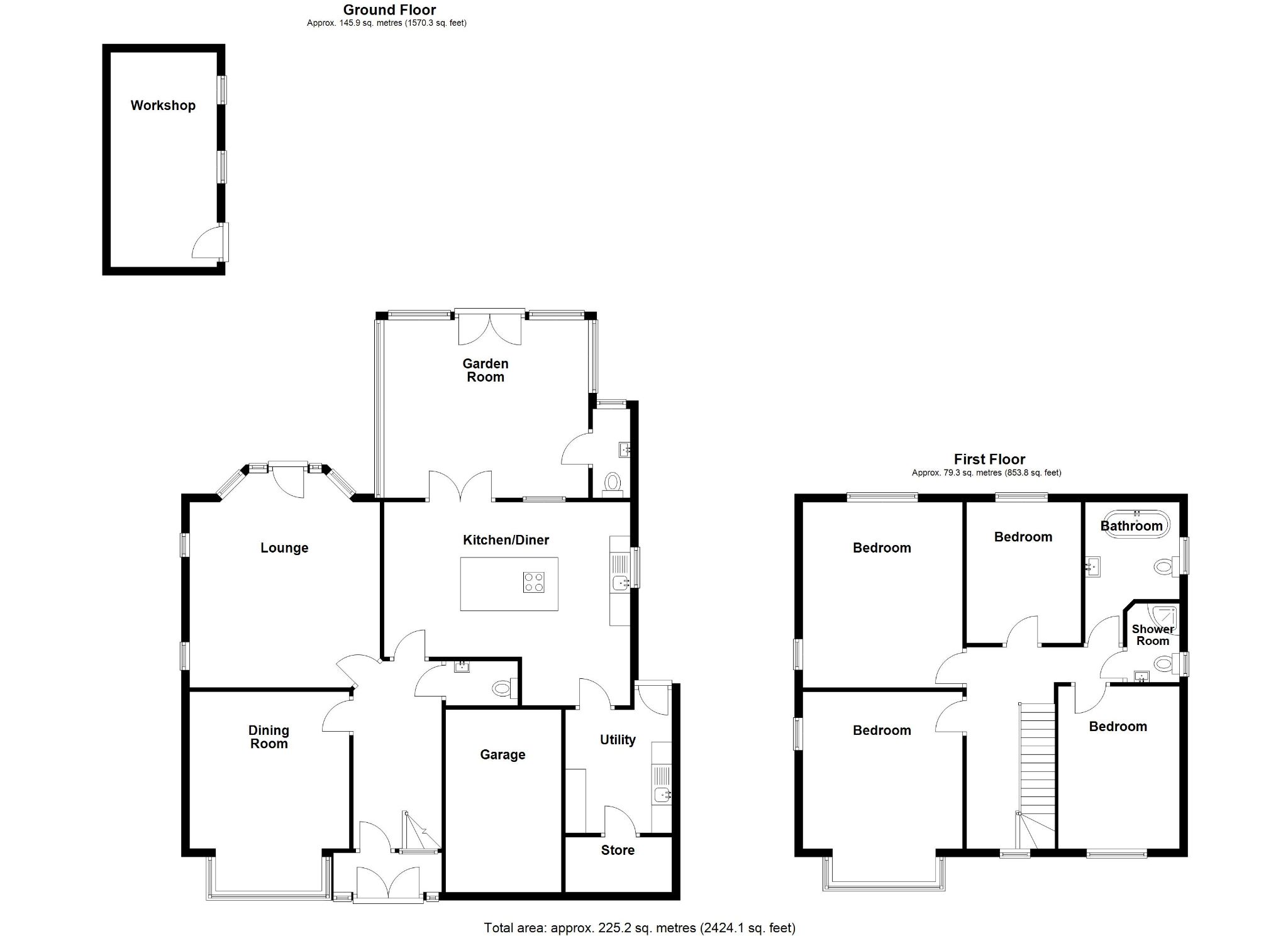
This beautifully presented four-bedroom 1930s detached family home has been lovingly maintained by the same family for over 30 years. Situated in one of Solihull’s most sought-after locations, this home boasts a stunning South Westerly facing landscaped garden & is finished to an exceptional standard throughout. The accommodation briefly comprises: an inviting reception hallway, cloakroom/WC, two principal reception rooms, a high-quality refitted breakfast kitchen with adjoining utility room, and a bright garden room with separate WC. Upstairs offers four generously sized double bedrooms, family bathroom, separate shower room, There is a full size single garage & separate storeroom behind the utility and a beautifully maintained private rear garden.

Description

This beautifully presented four-bedroom 1930s detached family home has been lovingly maintained by the same family for over 30 years. Situated in one of Solihull’s most sought-after locations, this home boasts a stunning South Westerly facing landscaped garden & is finished to an exceptional standard throughout. The accommodation briefly comprises: an inviting reception hallway, cloakroom/WC, two principal reception rooms, a high-quality refitted breakfast kitchen with adjoining utility room, and a bright garden room with separate WC. Upstairs offers four generously sized double bedrooms, family bathroom, separate shower room, There is a full size single garage & separate storeroom behind the utility and a beautifully maintained private rear garden.


APPROACH

Via a deep driveway enabling off road parking for several vehicles leading to a UPVC double glazed enclosed porch and door.

ENTRANCE HALL

Amtico floor, stairs with banister rising to first floor landing, ceiling light point, single panel radiator, doors radiating off to under stairs cloakroom / WC, dining room, lounge and breakfast kitchen.

CLOAKROOM / WC

Handwash basin with vanity, low level flush WC, ceramic tiling to splash prone areas, ceiling spotlight, extractor fan.

FRONT RECEPTION ROOM

15' 4" (4.7M) X 12' 5" (3.8M)

Ornamental feature fireplace, plate racks, single panel radiator, ceiling light point, UPVC double glazed bay window to the front aspect.

REAR RECEPTION ROOM

17' 9" (5.4M) X 13' 8" (4.2M)

Ornamental Stone fireplace with electric log burner, single panel radiator, plate racks, ceiling light point, two feature diamond leaded windows, UPVC double glazed French door and UPVC double glazed bay window to the rear aspect.

FITTED BREAKFAST KITCHEN

20' 0" (6.1M) X 12' 1" (3.7M)

A beautifully appointed modern kitchen comprising a range of clay handless wall and base units with quartz work surfaces and an Anthracite central island, complementary quartz upstands to splash prone areas, one and a half bowl inset sink unit with mixer tap over, Bosch integrated appliances including an induction hob, two Bosch ovens and two microwave ovens, Bosch dishwasher & full height fridge, ceiling mounted extractor fan, ceiling spotlights, Amtico floor with underfloor heating, skylight & UPVC double glazed window to side and triple folding French doors to garden room and further door to utility:-

UTILITY

10' 5" (3.2M) X 7' 2" (2.2M)

A range of wall and base units with co-ordinating roll top work surfaces, single drain sink unit with mixer tap over, space and plumbing for a washing machine and dryer, wall-mounted Baxi boiler, vinyl floor, door to useful garage/store.

STUNNING GARDEN ROOM

16' 7" (5.1M) X 14' 4" (4.4M)

Wood effect flooring with under floor heating, double panel radiator and ceiling light point with door to useful cloakroom/ WC & UPVC double glazed doors leading to garden

FIRST FLOOR LANDING

Impressive landing, UPVC double glazed window to the front aspect, loft access with pull down ladder leading to a fully boarded loft/games room, doors radiating off to bedroom one, bedroom two, bedroom three, bedroom four, bathroom & shower room

BEDROOM ONE (FRONT)

15' 6" (4.3M) X 12' 8" (3.9M)

Single panel radiator, picture rail, ceiling light point, UPVC double glazed bay window to the front aspect.

BEDROOM TWO (REAR)

15' 1" (4.6M) X 12' 8" (3.9M)

Single panel radiator, picture rail, ceiling light point, UPVC double glazed window to the rear aspect.

BEDROOM THREE (FRONT)

12' 1" (3.7M) X 9' 5" (2.9M)

Wood effect flooring, double panel radiator, picture rail, ceiling light point, UPVC double glazed window to the front aspect.

BEDROOM FOUR (REAR)

11' 2" (3.4M) X 9' 5" (2.9M)

Wood effect flooring single panel radiator, picture rail, ceiling light point, UPVC double glazed window to rear aspect.

FAMILY BATHROOM

A beautiful suite comprises an authentic cast iron 1930’s roll top bath, low level flush WC, hand wash basin, storage cupboard, complimentary ceramic tiling to walls and vinyl floor, double panel radiator, ceiling & wall light points, obscure UPVC double glazed window to the side aspect.

SHOWER ROOM

A useful additional shower room ideal for a busy household comprises, low level flush WC, hand wash basin, shower enclosure with thermostatic shower & riser, complimentary ceramic tiling to walls and vinyl floor, ceiling light point, chrome towel radiator, obscure UPVC double glazed window to the side aspect.

REAR GARDEN

An attractive, mature South Westerly facing garden, paved patio leads to a spectacular, landscaped garden with wood panel fence perimeter interspersed with borders that are well-stocked with a selection of mature shrubs and trees creating a charming and private aspect. At the rear is a block paved separate section of the garden with timber shed, fully insulated workshop that has power, lighting and internet connection that could be used as a home office/garden room. There is an additional log store. With this section of the garden offering a private sanctuary to step away from the everyday hustle & bustle.

SINGLE GARAGE

15' 8" (4.8M) X 9' 6" (2.9M)

Electric roller garage door to the front, lighting, power, gas and electric meters.

TENURE

We have been advised that the property is Freehold. This is subject to verification by your Solicitor.



Property data powered by Stand Out Property Manager

Mobile link

Scan this QR code to go directly to this property on your phone.

Contact the agent

Features

  • Traditional Character 1930's Detached Residence
  • Spectacular South Westerly Facing Garden
  • Stunning Refitted Kitchen Plus Garden Room
  • Four Double Bedrooms
  • Excellent School Catchment
  • Luxury Family Bathroom & Seperate Shower Room
  • Council Tax Band F

Stamp duty estimate

Mortgage calculator

Similar properties

4 bedroom detached house For Sale in Solihull - Photograph 21.
4 bedroom detached house For Sale in Solihull - Photograph 20.
4 bedroom detached house For Sale in Solihull - Photograph 2.
4 bedroom detached house For Sale in Solihull - Photograph 6.
4 bedroom detached house For Sale in Solihull - Photograph 3.
4 bedroom detached house For Sale in Solihull - Photograph 21.
4 bedroom detached house For Sale in Solihull - Photograph 10.
4 bedroom detached house For Sale in Solihull - Photograph 4.
4 bedroom detached house For Sale in Solihull - Photograph 8.
4 bedroom detached house For Sale in Solihull - Photograph 9.
4 bedroom detached house For Sale in Solihull - Photograph 10.
4 bedroom detached house For Sale in Solihull - Photograph 11.
4 bedroom detached house For Sale in Solihull - Photograph 6.
4 bedroom detached house For Sale in Solihull - Photograph 7.
4 bedroom detached house For Sale in Solihull - Photograph 12.
4 bedroom detached house For Sale in Solihull - Photograph 13.
4 bedroom detached house For Sale in Solihull - Photograph 15.
4 bedroom detached house For Sale in Solihull - Photograph 14.
4 bedroom detached house For Sale in Solihull - Photograph 17.
4 bedroom detached house For Sale in Solihull - Photograph 14.
4 bedroom detached house For Sale in Solihull - Photograph 15.
4 bedroom detached house For Sale in Solihull - Photograph 20.
4 bedroom detached house For Sale in Solihull - Photograph 16.
4 bedroom detached house For Sale in Solihull - Photograph 17.
4 bedroom detached house For Sale in Solihull - Photograph 18.
4 bedroom detached house For Sale in Solihull - Photograph 19.

More information

The graph shows the current stated energy efficiency for this property.

The higher the rating the lower your fuel bills are likely to be.

The potential rating shows the effect of undertaking the recommendations in the EPC document.

The average energy efficiency rating for a dwelling in England and Wales is band D (rating 60).

Current rating 65
Potential rating 92
4 bedroom detached house For Sale in Solihull - Floorplan 1.

Arrange a viewing

We treat your privacy seriously. We will never sell your information. We will never pass your information on to third parties without your consent, or use it for any reason other than those you allow.

Contains HM Land Registry data © Crown copyright and database right 2017. This data is licensed under the Open Government Licence v3.0.

Book a free market appraisal

Find out what your home is worth with our free, no obligation property appraisal.