Bartleys Estate Agents - Property details

Skip to content
30/10/2025
SSTC

Streetsbrook Road Solihull 4 bedroom semi detached house SSTC in Solihull

£545,000

4 bedrooms, 2 bathrooms.


Tenure : Freehold
Council Tax Band :
Building Insurance : Not Set

Property reference: SOL-12ZF1N6A
Print property

Property overview

Introduction

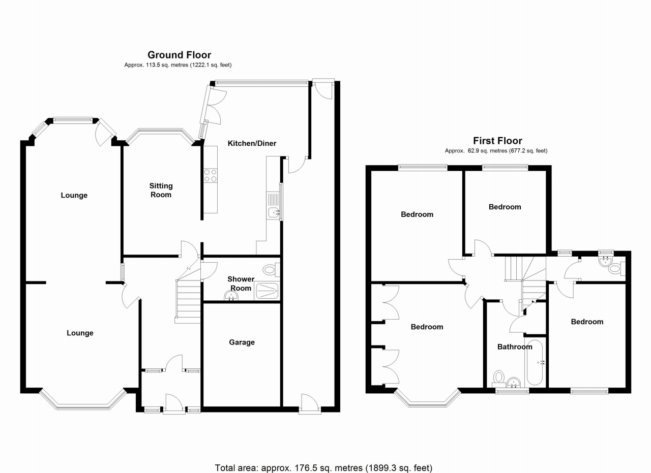
538 Streetsbrook Road is a beautifully presented extended four bedroom traditionally built residence that offers further scope for enlargement (STPP). The spacious interior retains many original features and characteristics of this era that compliment the generous accomodation on offer with a substantial south facing garden with the rare benefit of rear vehicular access providing huge potential for development. The accommodation briefly comprises welcoming hall way, three reception rooms, ground floor shower room/wc extended dining kitchen large utility, four double bedrooms, cloak room/wc, family bathroom, generous established south facing gardens, single garage and deep driveway.

Description

538 Streetsbrook Road is a beautifully presented extended four bedroom traditionally built residence that offers further scope for enlargement (STPP). The spacious interior retains many original features and characteristics of this era that compliment the generous accomodation on offer with a substantial south facing garden with the rare benefit of rear vehicular access providing huge potential for development. The accommodation briefly comprises welcoming hall way, three reception rooms, ground floor shower room/wc extended dining kitchen large utility, four double bedrooms, cloak room/wc, family bathroom, generous established south facing gardens, single garage and deep driveway.

Sales Particulars

View floorplan

Property data powered by Stand Out Property Manager

Mobile link

Scan this QR code to go directly to this property on your phone.

Contact the agent

Features

  • Considered One of Solihull's Premier Roads
  • Huge Potential for Enlargement/Development
  • Larger Style Traditional Semi Detached
  • Three Spacious Reception Rooms
  • Extended Dining Kitchen
  • Four Double Bedrooms
  • Generous Established South Facing Gardens

Stamp duty estimate

Mortgage calculator

4 bedroom semi detached house SSTC in Solihull - photograph 1.
4 bedroom semi detached house SSTC in Solihull - photograph 2.
4 bedroom semi detached house SSTC in Solihull - photograph 3.
4 bedroom semi detached house SSTC in Solihull - photograph 4.
4 bedroom semi detached house SSTC in Solihull - photograph 5.
4 bedroom semi detached house SSTC in Solihull - photograph 6.
4 bedroom semi detached house SSTC in Solihull - photograph 7.
4 bedroom semi detached house SSTC in Solihull - photograph 8.
4 bedroom semi detached house SSTC in Solihull - photograph 9.
4 bedroom semi detached house SSTC in Solihull - photograph 10.
4 bedroom semi detached house SSTC in Solihull - photograph 11.
4 bedroom semi detached house SSTC in Solihull - photograph 12.
4 bedroom semi detached house SSTC in Solihull - photograph 13.
4 bedroom semi detached house SSTC in Solihull - photograph 14.
4 bedroom semi detached house SSTC in Solihull - photograph 15.
4 bedroom semi detached house SSTC in Solihull - photograph 16.
4 bedroom semi detached house SSTC in Solihull - photograph 17.
4 bedroom semi detached house SSTC in Solihull - photograph 18.
4 bedroom semi detached house SSTC in Solihull - photograph 19.
4 bedroom semi detached house SSTC in Solihull - floorplan 1.

Arrange a viewing

We treat your privacy seriously. We will never sell your information. We will never pass your information on to third parties without your consent, or use it for any reason other than those you allow.

Contains HM Land Registry data © Crown copyright and database right 2017. This data is licensed under the Open Government Licence v3.0.

Book a free market appraisal

Find out what your home is worth with our free, no obligation property appraisal.