Bartleys Estate Agents - Property details

Skip to content
30/04/2026
SSTC

Witley Avenue Solihull 4 bedroom semi detached house SSTC in Solihull

£585,000

4 bedrooms, 2 bathrooms.


Tenure : Freehold
Council Tax Band :
Building Insurance : Not Set

Property reference: SOL-12EC1SZ0
Print property

Property overview

Introduction

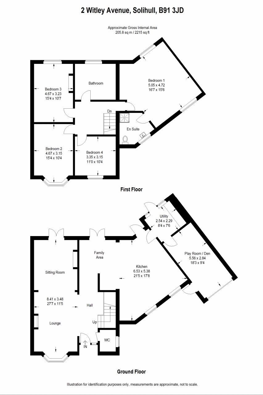
No 2 Witley Ave is a highly desirable extended residence that offers spacious interior designed accommodation within a stone's throw of the town centre shops and amenities, that consists of an open plan hallway, through lounge/ sitting room, magnificent dining kitchen with designated study & family areas, utility,play room/den dual aspect master bedroom with ensuite, three further bedrooms, family bathroom all within a superb established southerly facing corner plot.

Description

No 2 Witley Ave is a highly desirable extended residence that offers spacious interior designed accommodation within a stone's throw of the town centre shops and amenities, that consists of an open plan hallway, through lounge/ sitting room, magnificent dining kitchen with designated study & family areas, utility,play room/den dual aspect master bedroom with ensuite, three further bedrooms, family bathroom all within a superb established southerly facing corner plot.

Sales Particulars

View floorplan

Property data powered by Stand Out Property Manager

Mobile link

Scan this QR code to go directly to this property on your phone.

Contact the agent

Features

  • Beautifully Appointed ExtendedTraditional Residence
  • Stunning Interior Designed Accommodation
  • Bespoke Hand Painted Dining Kitchen & Family Room
  • Open Plan Ground Floor Living Space
  • Four Generous Bedrooms
  • Luxurious Ensuite & Family Bathroom
  • Solid Oak & Travertine Flooring
  • Established Corner Plot
  • Catchment For Tudor Grange Academy

Stamp duty estimate

Mortgage calculator

4 bedroom semi detached house SSTC in Solihull - Photograph 1.
4 bedroom semi detached house SSTC in Solihull - Photograph 2.
4 bedroom semi detached house SSTC in Solihull - Photograph 3.
4 bedroom semi detached house SSTC in Solihull - Photograph 4.
4 bedroom semi detached house SSTC in Solihull - Photograph 5.
4 bedroom semi detached house SSTC in Solihull - Photograph 6.
4 bedroom semi detached house SSTC in Solihull - Photograph 7.
4 bedroom semi detached house SSTC in Solihull - Photograph 8.
4 bedroom semi detached house SSTC in Solihull - Photograph 9.
4 bedroom semi detached house SSTC in Solihull - Photograph 10.
4 bedroom semi detached house SSTC in Solihull - Photograph 11.
4 bedroom semi detached house SSTC in Solihull - Photograph 12.
4 bedroom semi detached house SSTC in Solihull - Photograph 13.
4 bedroom semi detached house SSTC in Solihull - Photograph 14.
4 bedroom semi detached house SSTC in Solihull - Photograph 15.
4 bedroom semi detached house SSTC in Solihull - Photograph 16.
4 bedroom semi detached house SSTC in Solihull - Photograph 17.
4 bedroom semi detached house SSTC in Solihull - Photograph 18.
4 bedroom semi detached house SSTC in Solihull - Photograph 19.
4 bedroom semi detached house SSTC in Solihull - Photograph 20.
4 bedroom semi detached house SSTC in Solihull - Photograph 21.
4 bedroom semi detached house SSTC in Solihull - Photograph 22.
4 bedroom semi detached house SSTC in Solihull - Photograph 23.
4 bedroom semi detached house SSTC in Solihull - Photograph 24.
4 bedroom semi detached house SSTC in Solihull - Photograph 25.
4 bedroom semi detached house SSTC in Solihull - Photograph 26.
4 bedroom semi detached house SSTC in Solihull - Floorplan 1.

Arrange a viewing

We treat your privacy seriously. We will never sell your information. We will never pass your information on to third parties without your consent, or use it for any reason other than those you allow.

Contains HM Land Registry data © Crown copyright and database right 2017. This data is licensed under the Open Government Licence v3.0.

Book a free market appraisal

Find out what your home is worth with our free, no obligation property appraisal.