Bartleys Estate Agents - Property details

Skip to content
18/04/2026
Sold

LANGTREE AVENUE HILLFIELD SOLIHULL 5 bedroom detached house Sold in Solihull

£599,950

5 bedrooms, 3 bathrooms.


Tenure : Freehold
Council Tax Band :
Building Insurance : Not Set

Property reference: SOL-12D41CL6
Print property

Property overview

Introduction

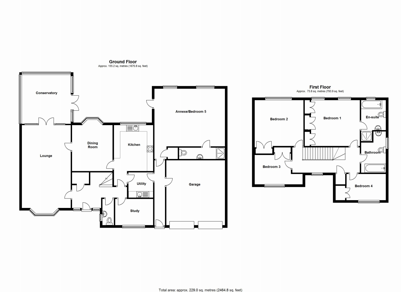
A beautifully appointed extended Bryant "Henley" design five bedroom executive detached property that includes a self contained annexe in the highly desirable Hillfield area. The spacious accommodation will appeal to a large or extended family and comprises covered porch, welcoming hall way, cloakroom/wc, study,dual aspect lounge, dining room, conservatory, breakfast kitchen, utility, annexe/bedroom 5, ensuite, master bedroom with ensuite bathroom, three further bedrooms, family bathroom, well tended generous gardens & double garage. Viewing is Highly recommended.

Description

A beautifully appointed extended Bryant "Henley" design five bedroom executive detached property that includes a self contained annexe in the highly desirable Hillfield area. The spacious accommodation will appeal to a large or extended family and comprises covered porch, welcoming hall way, cloakroom/wc, study,dual aspect lounge, dining room, conservatory, breakfast kitchen, utility, annexe/bedroom 5, ensuite, master bedroom with ensuite bathroom, three further bedrooms, family bathroom, well tended generous gardens & double garage. Viewing is Highly recommended.

Sales Particulars

View floorplan

Property data powered by Stand Out Property Manager

Mobile link

Scan this QR code to go directly to this property on your phone.

Contact the agent

Features

  • Bryants "Henley" Design Five Bedroom Detached Residence
  • Catchment For Tudor Grange Academy
  • Self Contained Annexe
  • Five Bedrooms, Ensuite & Family Bathroom
  • Lounge, Dining Room, Conservatory, Study
  • Breakfast Kitchen & Utility
  • Double Garage
  • Well Tended Generous Gardens

Stamp duty estimate

Mortgage calculator

Similar properties

5 bedroom detached house Sold in Solihull - photograph 1.
5 bedroom detached house Sold in Solihull - photograph 2.
5 bedroom detached house Sold in Solihull - photograph 3.
5 bedroom detached house Sold in Solihull - photograph 4.
5 bedroom detached house Sold in Solihull - photograph 5.
5 bedroom detached house Sold in Solihull - photograph 6.
5 bedroom detached house Sold in Solihull - photograph 7.
5 bedroom detached house Sold in Solihull - photograph 8.
5 bedroom detached house Sold in Solihull - photograph 9.
5 bedroom detached house Sold in Solihull - photograph 10.
5 bedroom detached house Sold in Solihull - photograph 11.
5 bedroom detached house Sold in Solihull - photograph 12.
5 bedroom detached house Sold in Solihull - photograph 13.
5 bedroom detached house Sold in Solihull - photograph 14.
5 bedroom detached house Sold in Solihull - photograph 15.
5 bedroom detached house Sold in Solihull - photograph 16.
5 bedroom detached house Sold in Solihull - photograph 17.
5 bedroom detached house Sold in Solihull - photograph 18.
5 bedroom detached house Sold in Solihull - photograph 19.
5 bedroom detached house Sold in Solihull - photograph 20.
5 bedroom detached house Sold in Solihull - floorplan 1.

Arrange a viewing

We treat your privacy seriously. We will never sell your information. We will never pass your information on to third parties without your consent, or use it for any reason other than those you allow.

Contains HM Land Registry data © Crown copyright and database right 2017. This data is licensed under the Open Government Licence v3.0.

Book a free market appraisal

Find out what your home is worth with our free, no obligation property appraisal.