Property overview
Introduction
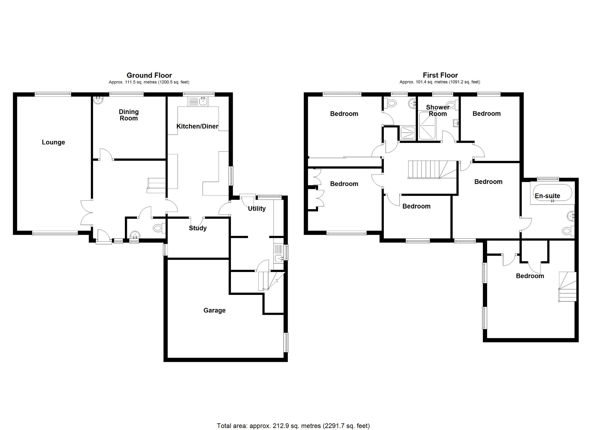
Situated on a fabulous corner plot is a beautifully appointed extended Six bedroom executive detached property located in a quiet cul de sac with open views across Widney Manor Golf Course. The spacious accommodation will appeal to a large or extended family and comprises covered porch, welcoming hall way, cloakroom/wc,dual aspect lounge, separate dining room, snug, breakfast kitchen, large utility, annexe/bedroom 6 with ensuite, master bedroom with ensuite, four further bedrooms, ensuite bathroom & family bathroom, well tended generous gardens with swimming pool, overlooking a Golf course & double garage. Viewing is Highly recommended.Description
Situated on a fabulous corner plot is a beautifully appointed extended Six bedroom executive detached property located in a quiet cul de sac with open views across Widney Manor Golf Course. The spacious accommodation will appeal to a large or extended family and comprises covered porch, welcoming hall way, cloakroom/wc,dual aspect lounge, separate dining room, snug, breakfast kitchen, large utility, annexe/bedroom 6 with ensuite, master bedroom with ensuite, four further bedrooms, ensuite bathroom & family bathroom, well tended generous gardens with swimming pool, overlooking a Golf course & double garage. Viewing is Highly recommended.APPROACH
Via a sweeping block paved driveway that affords ample off road parking for several vehicles, leading to a large laid to lawn foregarden and canopy porch entrance to
IMPRESSIVE ENTRANCE HALL
10' 2" (3.1M) X 11' 10" (3.6M)
American oak staircase rising to the first floor Amtico flooring, double panel radiator, door to cloakroom/WC, double doors to lounge, door to dining room and door kitchen.
CLOAK ROOM WC
Modern close coupled WC, hand wash basin, Amtico flooring, single panel radiator, ceiling light point, obscure UPVC double glazed window to the front aspect.
DUAL ASPECT LOUNGE
12' 6" (3.8M) X 23' 7" (7.2M)
A well presented dual aspect lounge with ornamental fireplace and coal effect gas fire, two double panel radiators, two ceiling light points, TV point, UPVC double glazed window to the front and rear aspects.
DINING ROOM
10' 10" (3.3M) X 10' 2" (3.1M)
Single panel radiator, ceiling light point, wall light fitting, UPVC double glazed window to rear aspect.
FITTED BREAKFAST KITCHEN
20' 4" (6.2M) X 9' 10" (3M)
A comprehensively fitted kitchen comprising a range of light oak wall and base units with granite work surfaces and matching breakfast bar, provision for a range master gas cooker, canopy extractor fan, Neff integrated dishwasher, American style Samsung fridge freezer, complementary ceramic tiling to splash prone areas, Amtico flooring, double panel radiator, two ceiling light points, UPVC double glazed windows to rear and side aspect, door to utility and snug.
UTILITY
11' 10" (3.6M) X 8' 2" (2.5M)
A comprehensively fitted utility with a range of oak wall and base units with granite effect roll top work surfaces, complementary tiling to splash prone areas, Amtico flooring, space and plumbing for a washing machine and dryer, double panel radiator, UPVC double glazed window and door to the side and rear aspects, door to staircase rising to bedroom (six) with glass balustrade.
SNUG
8' 10" (2.7M) X 6' 7" (2M)
Ceramic tiled floor, electric under floor heating, single panel radiator, TV point, telephone point, UPVC double glazed window to the front aspect.
BEDROOM SIX (ANNEX ABOVE GARAGE)
17' 5" (5.3M) X 13' 9" (4.2M)
Two UPVC double glazed windows to front aspect, black vertical feature radiator, ceiling spotlights, door to en-suite.
EN-SUITE
Newly refitted ensuite has a contemporary white suite that includes a close coupled wc, hand wash basin with vanity cabinet, large shower enclosure with glass shower screen, thermostatic shower unit, complimentary ceramic tiling to walls & floor, mirrored bathroom cabinet, chrome towel radiator, extractor fan
FIRST FLOOR LANDING
American oak staircase to first floor landing, double door to airing cupboard housing hot water cylinder, double panel radiator, access to boarded loft with pull down ladders and lighting, door to bedroom one, bedroom two, bedroom three, bedroom four, bedroom five and family shower room.
MASTER BEDROOM (REAR)
12' 2" (3.7M) X 11' 10" (3.6M)
A range of fitted sliding wardrobes with mirrored doors, single panel radiator, ceiling light point, UPVC double glazed window to the rear aspect, door to:-
EN-SUITE
Modern en-suite comprising low level flush WC, pedestal hand wash basin, shower enclosure with thermostatic shower unit, splash back's with waterproof Mermaid wall panels, ceramic tiled flooring, panel radiator, ceiling spot lights, obscure UPVC double glazed window to the rear aspect.
BEDROOM TWO (FRONT)
11' 10" (3.6M) X 11' 6" (3.5M)
Wood effect flooring, ceiling light point, fitted double wardrobes, UPVC double glazed window to the front aspect.
BEDROOM THREE
12' 6" (3.8M) X 11' 2" (3.4M)
Fitted double wardrobe, single panel radiator, ceiling light point, UPVC double glazed window to the front aspect, door to:-
EN-SUITE BATHROOM
A striking bathroom with an oversized Jacuzzi bath with power jets, waterfall taps, hand wash basin, close coupled WC, feature radiator, wood effect flooring, ceramic tiling to walls, ceiling spotlights, obscure UPVC double glazed window to rear aspect.
BEDROOM FOUR REAR
10' 2" (3.1M) X 8' 10" (2.7M)
Single panel radiator ceiling spotlights, UPVC double glazed window to the rear aspect.
BEDROOM FIVE FRONT
10' 2" (3.1M) X 6' 11" (2.1M)
Single panel radiator, ceiling light point, UPVC double glazed window to front aspect.
SHOWER ROOM
A beautifully appointed shower room with contemporary glass shower screen, chrome showerhead, separate power shower, chrome radiator, close coupled WC, hand wash basin, wall and floor spotlights, integrated ceiling speaker, obscure UPVC double glazed window to rear aspect.
DOUBLE GARAGE
19' 0" (5.8M) X 15' 5" (4.7M)
Electric roller door, power and lighting, Valiant condenser boiler.
SIDE PARKING
To the left hand side of the property is gated secure parking for a car / caravan that gives access to the rear garden.
REAR GARDEN
Full-width paved patio leading to a large, mostly laid to lawn garden with shrub and tree filled borders. There is a heated swimming pool that has uninterrupted views across the local Widney Manor golf course.
TENURE
We have been advised that the property is Freehold. This is subject to solicitor verification.

























Arrange a viewing
Contains HM Land Registry data © Crown copyright and database right 2017. This data is licensed under the Open Government Licence v3.0.