Bartleys Estate Agents - Property details

Skip to content
30/04/2026
Featured property SSTC

Engine Mews, Hampton in Arden, B92 3 bedroom semi-detached house SSTC in Solihull

£585,000

3 bedrooms, 2 bathrooms.


Tenure : Freehold
Council Tax Band :
Building Insurance : Not Set

Property reference: SOL-GAN12T3AVZ
Print property

Property overview

Introduction

A wonderfully presented and tastefully decorated property situated in a private courtyard setting on a generous corner plot. In brief, the accommodation affords entrance hall with guest cloakroom, dual aspect lounge with French doors opening out to the rear garden, stunning breakfast kitchen/dining with French doors to the rear garden, on the first floor there are Master bedroom with ensuite , two further bedrooms(two with balcony's) family bathroom and well established garden. Off road parking for two vehicles. Surrounding area Hampton in Arden is a village with a great community feel, benefiting from a village shop, deli two pubs and a Michelin Star restaurant and tennis courts. It is also located within commutable distance of Birmingham or London. NEC and Birmingham International Airport.

Description

A wonderfully presented and tastefully decorated property situated in a private courtyard setting  on a generous corner plot. In brief, the accommodation affords entrance hall with guest cloakroom, dual aspect lounge with French doors opening out to the rear garden, stunning breakfast kitchen/dining with French doors to the rear garden, on the first floor there are Master bedroom with ensuite , two further bedrooms(two with balcony's)  family bathroom and well established garden. Off road parking for two vehicles.

Surrounding area

Hampton in Arden is a village with a great community feel, benefiting from a village shop, deli two pubs and a Michelin Star restaurant and tennis courts. It is also located within commutable distance of Birmingham or London. NEC and Birmingham International Airport.


APPROACH

Via a block paved driveway enabling off road parking and a block paved pathway giving leading to an obscure glazed door to:-.

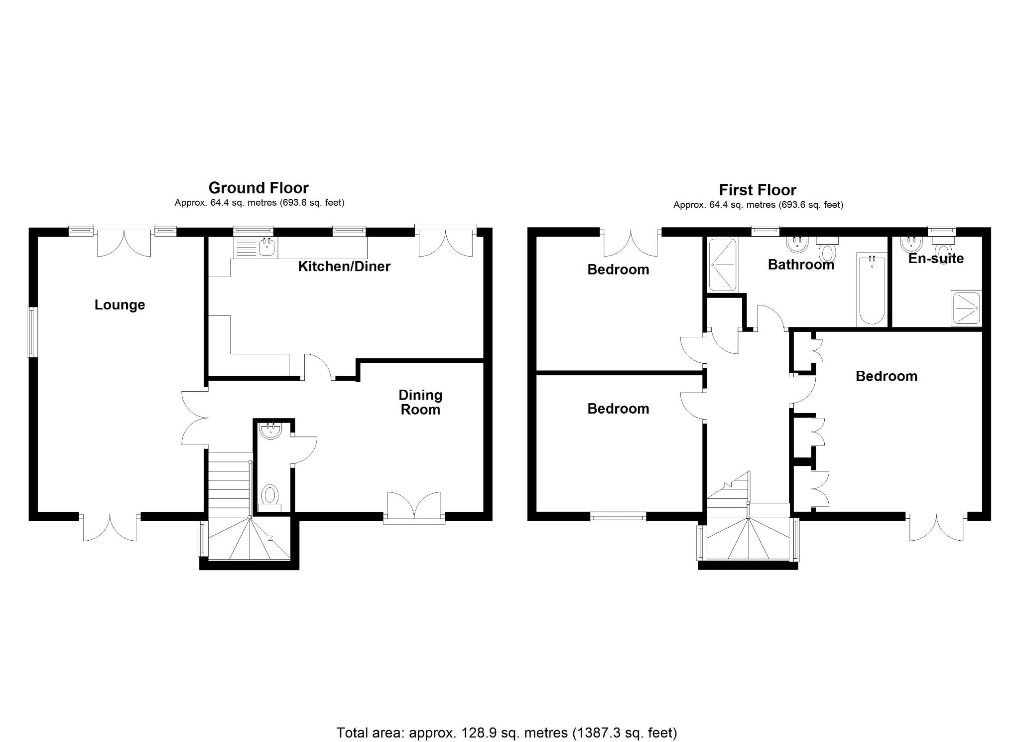
ENTRANCE HALL

Oak flooring, spotlights, stairs rising to first floor, split level landing, double panel radiator, opening to dining room, doors to cloakroom/WC, kitchen and lounge.

CLOAKROOM / WC

Low level flush WC, pedestal hand wash basin, ceramic tiling to splash prone areas, single panel radiator, ceiling light point, extractor fan and built-in storage cupboard.

DINING ROOM

12' 2" (3.7M) X 8' 6" (2.6M)

Continuation of oak flooring, two ceiling light points, UPVC double glazed French doors to front aspect.

BREAKFAST KITCHEN

21' 4" (6.5M) X 8' 10" (2.7M)

Fitted with a range of white gloss wall and base units with complimentary rolltop worksurfaces, stainless steel single drainer sink unit with mixer tap over, provision for a gas range cooker, canopy extractor fan / hood, complementary ceramic tiling to walls and floors, Siemens integrated fridge, integrated dishwasher, space and plumbing for a washing machine, double panel radiator, wall-mounted Glow Worm combi boiler, space for a breakfast table and chairs, ceiling spotlights, hardwood double glazed window to the rear and matching French doors to the garden.

DUAL ASPECT LOUNGE

19' 0" (5.8M) X 11' 2" (3.4M)

Wall-mounted pebble stone electric fire, TV point, two ceiling light points, telephone point, double panel radiator, two sets of hardwood double glazed French doors to the front and rear aspect, Hardwood double glazed window to side elevation.


SPLIT LEVEL LANDING

Dual aspect hardwood double glazed windows to side elevations, first floor landing with airing cupboard having a hot water cylinder and shelving, loft access.

LOFT

Part boarded loft space with pulldown ladder.

MASTER BEDROOM (FRONT)

14' 1" (4.3M) X 28' 7" (8.7M)

Modern high gloss fitted wardrobes, matching bedside cabinets (purchase by way of a separate negotiation), double panel radiator, ceiling light point, hardwood double glazed French doors leading to the balcony with views across countryside. Door to:-

EN-SUITE

Low level flush WC, pedestal hand wash basin, shower enclosure with chrome thermostatic shower unit, complementary ceramic tiling to walls and floors, shaver point, extractor fan, radiator, ceiling spotlights and obscure hardwood double glazed window to rear aspect.

BEDROOM TWO (REAR)

11' 10" (3.6M) X 11' 6" (3.5M)

Single panel radiator, ceiling light point, hardwood double glazed French doors to balcony with views across the garden.

BEDROOM THREE (FRONT)

12' 2" (3.7M) X 7' 10" (2.4M)

Single panel radiator, hardwood double glazed window to front aspect.

FAMILY BATHROOM

Modern three-piece, white suite comprising low level flush WC, pedestal hand wash basin, panelled bath with shower attachment over, separate shower enclosure with chrome thermostatic shower unit, complementary ceramic tiling to walls, shaver point, extractor fan, towel radiator, obscure hardwood double glazed window to the rear aspect.

GARDEN

A full-width paved patio leads to a lovely L-shaped garden which enjoys a good degree of privacy created by a wide selection of mature trees and shrubs. The garden has a lawned areas, feature train sleepers and wood panel fenced perimeter. There is outside water and power supply. A gate gives access the small garden which is located in front of the dual aspect lounge.



Property data powered by Stand Out Property Manager

Mobile link

Scan this QR code to go directly to this property on your phone.

Contact the agent

Features

  • Extended three bedroom property
  • Beautiful Development in a Picturesque Village
  • Large Corner Plot
  • Established Private Gardens
  • Modern Ensuite & Family Bathroom
  • Off Road Parking for Two Vehicles
  • Two Stunning Balcony's

Stamp duty estimate

Mortgage calculator

3 bedroom semi-detached house SSTC in Solihull - Photograph 1.
3 bedroom semi-detached house SSTC in Solihull - Photograph 2.
3 bedroom semi-detached house SSTC in Solihull - Photograph 3.
3 bedroom semi-detached house SSTC in Solihull - Photograph 4.
3 bedroom semi-detached house SSTC in Solihull - Photograph 5.
3 bedroom semi-detached house SSTC in Solihull - Photograph 6.
3 bedroom semi-detached house SSTC in Solihull - Photograph 7.
3 bedroom semi-detached house SSTC in Solihull - Photograph 8.
3 bedroom semi-detached house SSTC in Solihull - Photograph 9.
3 bedroom semi-detached house SSTC in Solihull - Photograph 10.
3 bedroom semi-detached house SSTC in Solihull - Photograph 11.
3 bedroom semi-detached house SSTC in Solihull - Photograph 12.
3 bedroom semi-detached house SSTC in Solihull - Photograph 13.
3 bedroom semi-detached house SSTC in Solihull - Photograph 14.
3 bedroom semi-detached house SSTC in Solihull - Photograph 15.
3 bedroom semi-detached house SSTC in Solihull - Floorplan 2.

Arrange a viewing

We treat your privacy seriously. We will never sell your information. We will never pass your information on to third parties without your consent, or use it for any reason other than those you allow.

Contains HM Land Registry data © Crown copyright and database right 2017. This data is licensed under the Open Government Licence v3.0.

Book a free market appraisal

Find out what your home is worth with our free, no obligation property appraisal.