Bartleys Estate Agents - Property details

Skip to content
18/03/2026
Featured property SSTC New

Broad Oaks Road, Solihull, B91 4 bedroom detached house SSTC in Solihull

£1,100,000

4 bedrooms, 2 bathrooms.


Tenure : Freehold
Council Tax Band :
Building Insurance : Not Set

Property reference: SOL-1JQ815YXUNS
Print property

Property overview

Introduction

*Open Day Saturday 7th February 12-1pm by appointment only* Bartleys are pleased to offer this charming and spacious four bedroom detached home full of character and original features being much loved and cherished, within the same family ownership for the last 46 years . Built in the late1920’s in a central Solihull, this much loved property offers two principal reception rooms, library, beautifully appointed kitchen & utility & a stunning conservatory that overlooks the spectacular south facing rear garden. With generous proportions throughout and scope to further extend(STPP) to create your dream family home just a short walk from Solihull Station and local amenities.

Description

*Open Day Saturday 7th February 12-1pm by appointment only*


Bartleys are pleased to offer this charming and spacious four bedroom detached home full of character and original features being much loved and cherished, within the same family ownership for the last 46 years . Built in the late1920’s in a central Solihull, this much loved property offers two principle reception rooms, library, beautifully appointed kitchen & utility & a stunning conservatory that overlooks the spectacular south facing rear garden. With generous proportions throughout and scope to further extend(STPP) to create your dream family home just a short walk from Solihull Station and local amenities.


This beautifully late 1920s four bedroom home offers a rare opportunity to live in the heart of Solihull. With traditional character, spacious rooms, and a spectacular rear garden, the property is ideal for families seeking charm and space with potential to extend. Just a short walk from the station and local amenities, and within easy reach of Touchwood and Arden Tennis Club, this home combines period elegance with a prime location.


APPROACH

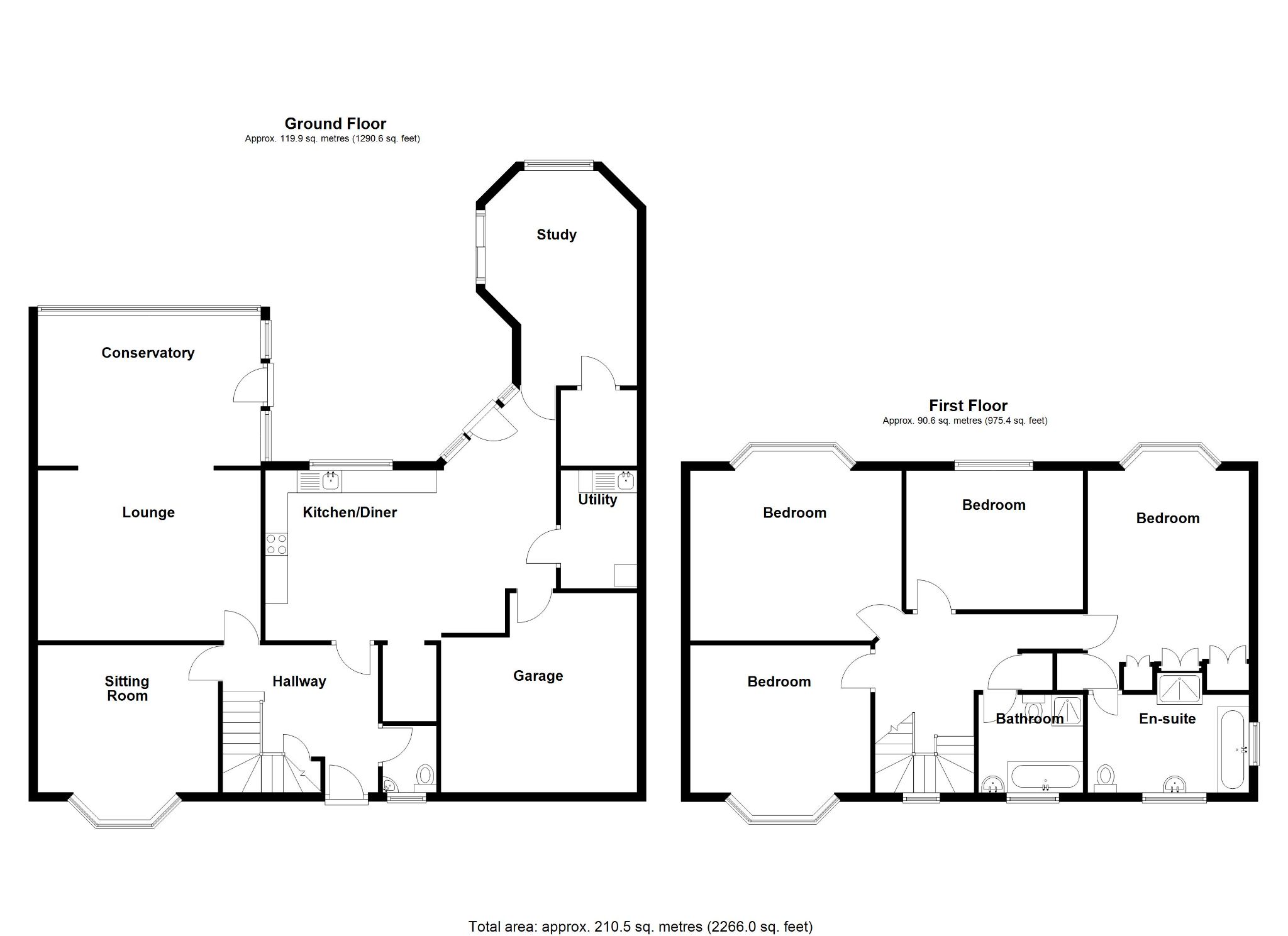
The property is sat well back from the road with a deep driveway providing off-road parking for numerous vehicles leading to a double width Garage. There is a lawned fore garden leading to a covered storm porch entrance to:-

WELCOMING HALLWAY

A spacious hall welcomes you and has beautiful original oak cladding and staircase rising to first floor landing, double panel radiator, ceiling light point, doors radiating off to both reception rooms, kitchen and cloakroom/WC.

CLOAKROOM / WC

Low-level flush WC, hand wash basin, ceramic tiling to floors and walls, single panel radiator, obscure UPVC double glazed window to the front aspect.

SITTING ROOM

16' 9" (5.1M) X 12' 6" (3.8M)

Ornate feature fireplace with gas fire insert, original ceiling coving, ceiling light point, two double panel radiators, large feature archway & UPVC double glazed bay window to the front aspect.

LOUNGE

16' 9" (5.1M) X 12' 6" (3.8M)

Original open fireplace, two double panel radiators, ceiling light point, original coving to ceiling, two wall light points, archway leading through to:-

STUNNING CONSERVATORY

17' 1" (5.2M) X 9' 6" (2.9M)

Enjoys a wonderful vista of the spectacular mature garden with two double panel radiators and UPVC double glazed door to the rear.


BREAKFAST KITCHEN

20' 8" (6.3M) X 11' 10" (3.6M)

A beautifully fitted, light oak shaker-style kitchen comprehensively fitted with a range of wall and base units with granite work surfaces and upstands, integrated Siemens appliances that include an induction hob, double oven, canopy extractor fan, dishwasher, one and a half bowl ceramic single drain sink unit, LED spotlights underfloor heating, double panel radiator, delightful walk-in pantry, UPVC double glazed window overlooking the garden, doors leading off to the utility, library, garage and UPVC double glazed door to the garden.

UTILITY

8' 10" (2.7M) X 5' 7" (1.7M)

A range of matching units with granite work surfaces, ceramic single bowl sink unit, underfloor heating, space and plumbing for a washing machine.

LIBRARY / STUDY

15' 1" (4.6M) X 13' 5" (4.1M)

Unique hexagonal shaped extension that is currently used as a library but could easily be used for a multitude of purposes including a ground floor bedroom, double panel radiator, tongue & groove ceiling with light point, LED spotlights, door to large walk-in cupboard, UPVC double glazed windows and UPVC double glazed door lead out to the garden.


FIRST FLOOR

Beautifully maintained original timber beams to ceilings, ceiling light point, large a loft hatch with ladder leads to an substantial boarded loft space that offers huge potential for conversion, doors radiate off to all bedrooms and family bathroom and a large built in storage cupboard.

MASTER BEDROOM (REAR)

16' 9" (5.1M) X 11' 10" (3.6M)

Enjoys glorious views of the rear garden, fitted with a range of built-in wardrobes, double panel radiator, ceiling light point, UPVC double glazed bay window to the rear aspect door to:-

EN-SUITE

11' 10" (3.6M) X 7' 7" (2.3M) MAX

A modern refitted en-suite bathroom/wet room has a contemporary three-piece suite comprising low-level flush WC, hand wash basin with vanity unit, panel bath, shower enclosure with thermostatic shower unit, Italian ceramic tiling to walls and floors, LED spotlights, chrome towel radiator, illuminated mirror cabinet, obscure UPVC double glazed window to the front and side aspects.

BEDROOM TWO (FRONT)

16' 9" (5.1M) X 12' 10" (3.9M)

Double panel radiator, ceiling light point, UPVC double glazed bay window to the front aspect.

BEDROOM THREE (REAR)

16' 9" (5.1M) X 14' 9" (4.5M)

Double panel radiator, ceiling light point, UPVC double glazed bay window to the rear aspect.

BEDROOM FOUR (REAR)

11' 6" (3.5M) X 9' 6" (2.9M)

Double panel radiator, ceiling light point, UPVC double glazed window to the rear aspect.


FAMILY BATHROOM

A beautifully appointed, refitted bathroom comprises low-level flush WC, hand wash basin with vanity unit, panel bath, superb shower enclosure with thermostatic shower unit, complementary ceramic tiling to walls and floor chrome towel radiator, heated mirror cabinet, LED spotlights, obscure UPVC double glazed window to the front aspect.

DOUBLE GARAGE

16' 1" (4.9M) X 15' 5" (4.7M)

Electric roller shutter door, wall-mounted Vaillant combi boiler, power and lighting

OUTSIDE

This property is exceptionally located both with its position on Broad Oaks Road and the Garden’s Southwest facing aspect. There are very few properties on this road, or in the area, that offers such a large frontage and a beautiful rear garden divided into distinct areas providing an incredible outdoor space for the whole family. The rear garden has been meticulously maintained over the years creating a beautiful relaxation area with an abundance of mature trees shrubs and plants. It features a summer house and offers a good degree of privacy from neighbouring gardens thanks to a beautiful Arbor with climbing wisteria that leads to the rear of the garden.

TENURE

We have been advised that the property is Freehold. This is subject to verification by your Solicitor.





Property data powered by Stand Out Property Manager

Mobile link

Scan this QR code to go directly to this property on your phone.

Contact the agent

Features

  • Open Day Saturday 7th February 12-1pm by appointment only
  • Traditional Character 1920's Detached Residence
  • Spectacular South Facing Garden
  • Two Elegant Reception Rooms Plus Library
  • Refitted Ensuite & Family Bathroom
  • Spacious Reception Hall With Oak Panelling
  • Fantastic Scope To Further Extend (STPP)
  • Council Tax Band G

Stamp duty estimate

Mortgage calculator

Similar properties

4 bedroom detached house SSTC in Solihull - Photograph 1.
4 bedroom detached house SSTC in Solihull - Photograph 2.
4 bedroom detached house SSTC in Solihull - Photograph 3.
4 bedroom detached house SSTC in Solihull - Photograph 4.
4 bedroom detached house SSTC in Solihull - Photograph 5.
4 bedroom detached house SSTC in Solihull - Photograph 6.
4 bedroom detached house SSTC in Solihull - Photograph 14.
4 bedroom detached house SSTC in Solihull - Photograph 7.
4 bedroom detached house SSTC in Solihull - Photograph 8.
4 bedroom detached house SSTC in Solihull - Photograph 9.
4 bedroom detached house SSTC in Solihull - Photograph 10.
4 bedroom detached house SSTC in Solihull - Photograph 11.
4 bedroom detached house SSTC in Solihull - Photograph 12.
4 bedroom detached house SSTC in Solihull - Photograph 23.
4 bedroom detached house SSTC in Solihull - Photograph 13.
4 bedroom detached house SSTC in Solihull - Photograph 15.
4 bedroom detached house SSTC in Solihull - Photograph 16.
4 bedroom detached house SSTC in Solihull - Photograph 17.
4 bedroom detached house SSTC in Solihull - Photograph 18.
4 bedroom detached house SSTC in Solihull - Photograph 19.
4 bedroom detached house SSTC in Solihull - Photograph 20.
4 bedroom detached house SSTC in Solihull - Photograph 21.
4 bedroom detached house SSTC in Solihull - Photograph 22.
4 bedroom detached house SSTC in Solihull - Photograph 24.
4 bedroom detached house SSTC in Solihull - Photograph 25.

More information

The graph shows the current stated energy efficiency for this property.

The higher the rating the lower your fuel bills are likely to be.

The potential rating shows the effect of undertaking the recommendations in the EPC document.

The average energy efficiency rating for a dwelling in England and Wales is band D (rating 60).

Current rating 61
Potential rating 71
4 bedroom detached house SSTC in Solihull - Floorplan 1.

Arrange a viewing

We treat your privacy seriously. We will never sell your information. We will never pass your information on to third parties without your consent, or use it for any reason other than those you allow.

Contains HM Land Registry data © Crown copyright and database right 2017. This data is licensed under the Open Government Licence v3.0.

Book a free market appraisal

Find out what your home is worth with our free, no obligation property appraisal.