Bartleys Estate Agents - Property details

Skip to content
30/04/2026
Featured property SSTC

Church Hill Road, Solihull, B91 4 bedroom semi-detached house SSTC in Solihull

£599,995

4 bedrooms, 1 bathroom.


Tenure : Freehold
Council Tax Band :
Building Insurance : Not Set

Property reference: SOL-G8012PGNN7
Print property

Property overview

Introduction

*UNEXPECTANTLY BACK ON THE MARKET* 17 Church Hill Road is an impressive extended four bedroom semi detached within easy walking distance of Solihull town centre & falls within the catchment for Tudor Grange Academy. The property has been immaculately maintained and thoughtfully extended throughout & benefits from UPVC double glazing, gas central heating. The accommodation briefly comprises welcoming hall way, cloakroom/wc, through lounge/dining room, magnificent extended fitted breakfast kitchen, four bedrooms, refitted bathroom and mature garden. No Chain

Description

*UNEXPECTANTLY BACK ON THE MARKET*

17 Church Hill Road is an impressive extended four bedroom semi detached within easy walking distance of Solihull town centre & falls within the catchment for Tudor Grange Academy. The property has been immaculately maintained and thoughtfully extended throughout & benefits from UPVC double glazing, gas central heating. The accommodation briefly comprises welcoming hall way, cloakroom/wc, through lounge/dining room, magnificent extended fitted breakfast kitchen, four bedrooms, refitted bathroom and mature garden. No Chain

APPROACH

Via a blocked paved driveway that enables off-road parking for several vehicles which leads to an arched storm porch entrance to with stain glass front door to:-

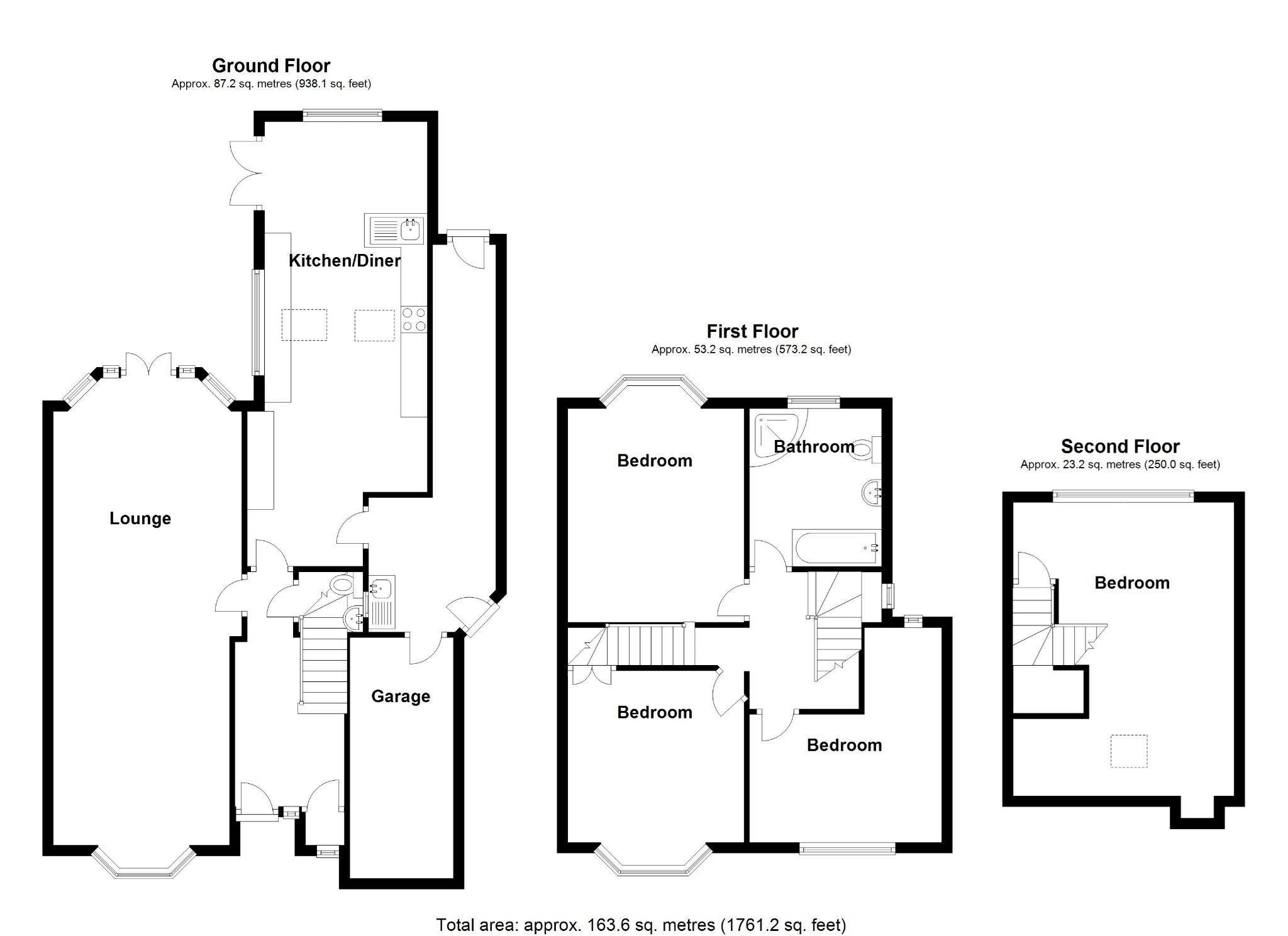
WELCOMING HALLWAY

Amtico flooring, double panel radiator, ceiling light point, built-in cupboard, stairs rising to first floor landing, understairs cloakroom/WC, doors to lounge and kitchen.

CLOAKROOM / WC

Low level flush WC, hand wash basin, panel radiator, ceiling light point, extractor fan, obscure UPVC double glazed window to the side aspect.

THROUGH LOUNGE / DINING ROOM

32' 6" (9.9M) X 12' 10" (3.9M)

Oak panel flooring, single panel radiator, double panel radiator, two ceiling light points, UPVC glazed bay window to the front aspect and UPVC double glazed French doors to the rear garden.

EXTENDED KITCHEN

27' 3" (8.3M) X 9' 6" (2.9M)

A comprehensively fitted kitchen comprises a range of white high-gloss wall and base units with quartz worksurfaces, upstands and breakfast bar, integrated Hotpoint induction hob, double oven, dishwasher, stainless steel single drainer sink unit, stainless steel canopy hood extractor fan, halogen spotlights, ceramic tiled flooring, two double panel radiators, space for an American-style fridge freezer, two Velux skylights, UPVC double glazed window to the side and rear aspects and door to:-

UTILITY SIDE ENTRANCE

22' 8" (6.9M) X 6' 7" (2M)

Base units with quartz tops, stainless steel single drainer sink unit, space and plumbing for washing machine, ceramic tiling to floors, two wall light points, UPVC double glazed door to the rear garden and side entrance and door to the garage.

FIRST FLOOR

Ceiling light point, doors to bedroom one, bedroom two, bedroom three, bathroom and further staircase to bedroom four.

BEDROOM ONE (REAR)

15' 5" (4.7M) X 11' 6" (3.5M)

A range of bespoke range of fitted furniture comprising wardrobe, dressing unit, chests of drawers and bedside cabinets, single panel radiator, UPVC double glazed bay window to the rear aspect.

BEDROOM TWO (FRONT)

14' 1" (4.3M) X 10' 10" (3.3M)

Built-in wardrobe, stripped wooden flooring, ceiling light point, double panel radiator, UPVC double glazed window to the front aspect.

BEDROOM THREE (FRONT)

12' 2" (3.7M) X 8' 6" (2.6M)

Built-in storage into the eaves area, single panel radiator, ceiling light point, UPVC double glazed window to the front aspect.

FAMILY BATHROOM

A beautiful modern suite comprises a bath with chrome shower attachment, low-level flush WC, hand wash basin with large built-in vanity unit, jacuzzi bath, separate shower enclosure with thermostatic shower unit, fitted mirror with lighting, ceramic tiled floor and walls, chrome towel radiator, halogen spotlights, UPVC double glazed window to the rear aspect.

BEDROOM FOUR LOFT CONVERSION

19' 8" (6M) X 10' 10" (3.3M)

A spacious, split level loft conversion enjoys views across the rear garden and beyond, double panel radiator, ceiling light point, Velux skylight, UPVC double glazed window to the front aspect.

GARAGE

470 X 2 30

Two and one third door, power, lighting, Worcester combi boiler

GARDEN

A paved patio with external lighting and water supply leads to a well-established lawned garden with wood panel perimeter fence, feature pergola and borders that are well-stocked with a variety of plants, shrubs and trees.

TENURE

We have been advised that the property is Freehold.



Property data powered by Stand Out Property Manager

Mobile link

Scan this QR code to go directly to this property on your phone.

Contact the agent

Features

  • Catchment for Tudor Grange Academy
  • Extended Four Bedroom Residence
  • Magnificent Fitted Breakfast Kitchen
  • Close Proximity to Solihull Town Centre
  • Off Road Parking & Garage
  • No Chain

Stamp duty estimate

Mortgage calculator

4 bedroom semi-detached house SSTC in Solihull - Photograph 1.
4 bedroom semi-detached house SSTC in Solihull - Photograph 2.
4 bedroom semi-detached house SSTC in Solihull - Photograph 3.
4 bedroom semi-detached house SSTC in Solihull - Photograph 4.
4 bedroom semi-detached house SSTC in Solihull - Photograph 5.
4 bedroom semi-detached house SSTC in Solihull - Photograph 6.
4 bedroom semi-detached house SSTC in Solihull - Photograph 7.
4 bedroom semi-detached house SSTC in Solihull - Photograph 8.
4 bedroom semi-detached house SSTC in Solihull - Photograph 9.
4 bedroom semi-detached house SSTC in Solihull - Photograph 10.
4 bedroom semi-detached house SSTC in Solihull - Photograph 11.
4 bedroom semi-detached house SSTC in Solihull - Photograph 12.
4 bedroom semi-detached house SSTC in Solihull - Photograph 13.
4 bedroom semi-detached house SSTC in Solihull - Photograph 14.
4 bedroom semi-detached house SSTC in Solihull - Photograph 15.
4 bedroom semi-detached house SSTC in Solihull - Floorplan 1.

Arrange a viewing

We treat your privacy seriously. We will never sell your information. We will never pass your information on to third parties without your consent, or use it for any reason other than those you allow.

Contains HM Land Registry data © Crown copyright and database right 2017. This data is licensed under the Open Government Licence v3.0.

Book a free market appraisal

Find out what your home is worth with our free, no obligation property appraisal.