Bartleys Estate Agents - Property details

Skip to content
01/01/2026
Featured property SSTC

The Grove, Hampton in Arden, Solihull, B92 4 bedroom semi-detached house SSTC in Solihull

£550,000

4 bedrooms, 2 bathrooms.


Tenure : Freehold
Council Tax Band :
Building Insurance : Not Set

Property reference: SOL-1HUT13Z0JU4
Print property

Property overview

Introduction

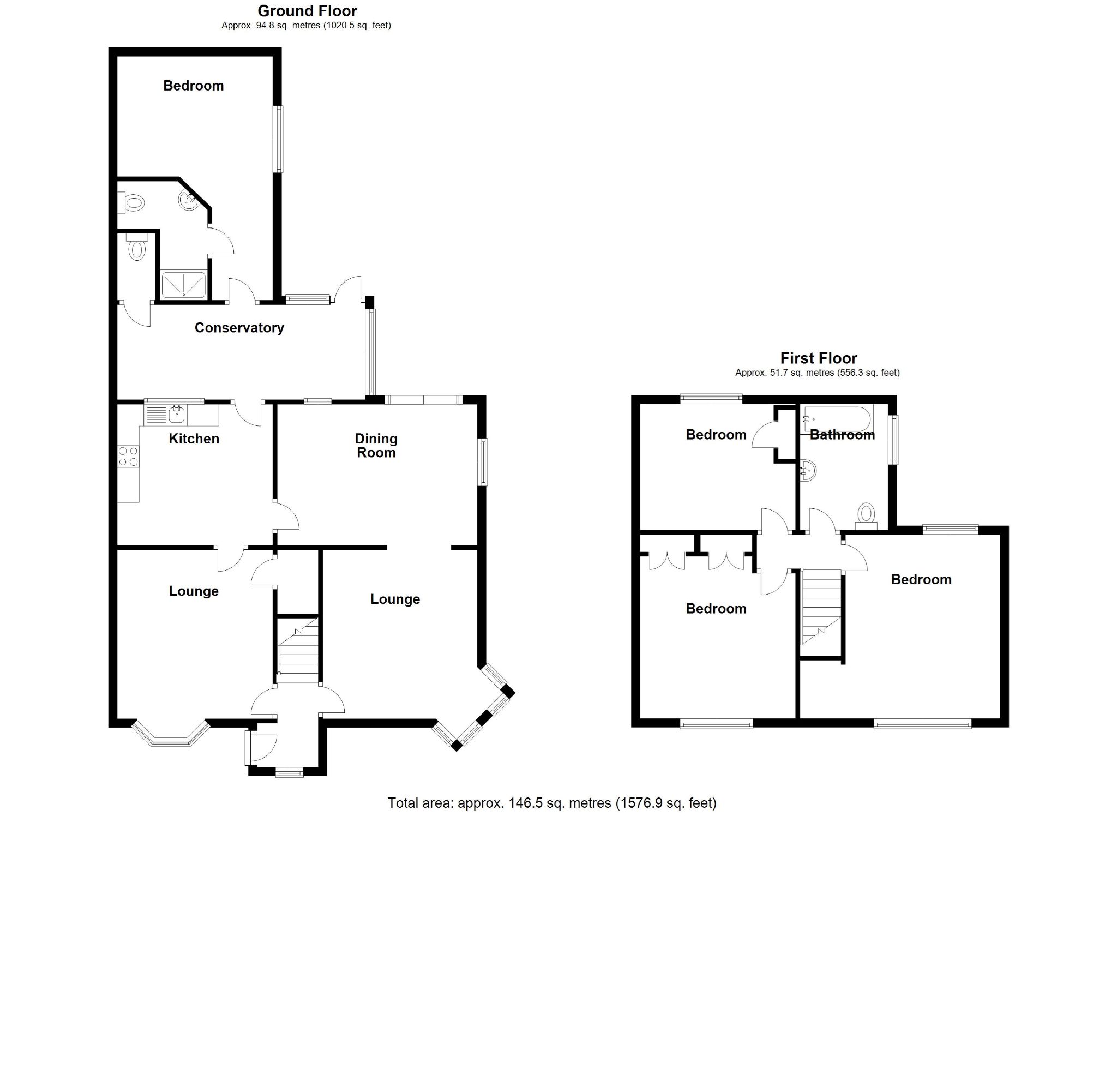
*OPEN DAY SATURDAY 1ST APRIL 12-2.30PM (BY APPOINTMENT ONLY)* A delightful four bedroom double fronted semi-detached Cottage is situated on 'The Grove', a private road located in the desirable village of Hampton-In-Arden. There is enormous scope for someone to put their own stamp on the property which has huge potential to extend (STPP). The accommodation comprises entrance hall that leads to a cosy lounge with wood burning stove, dining room leading to the kitchen & separate sitting room. There is a lean to conservatory/utility that gives access to a cloakroom/wc & attached annex that is used as Bedroom 4 & ensuite. To the first floor there are three double bedrooms and a family bathroom. Outside there is a private southerly garden and ample off road parking to the front. No Chain

Description

*OPEN DAY SATURDAY 1ST APRIL 12-2.30PM (BY APPOINTMENT ONLY)*


A delightful four bedroom double fronted semi-detached Cottage is situated on 'The Grove', a private road located in the desirable village of Hampton-In-Arden. There is enormous scope for someone to put their own stamp on the property which has huge potential to extend (STPP). The accommodation comprises entrance hall that leads to a cosy lounge with wood burning stove, dining room leading to the kitchen & separate sitting room. There is a lean to conservatory/utility that gives access to a cloakroom/wc & attached annex that is used as Bedroom 4 & ensuite. To the first floor there are three double bedrooms and a family bathroom. Outside there is a private southerly garden and ample off road parking to the front. No Chain 


Hampton is a charming and most popular village surrounded by open green belt countryside, yet standing just four miles from Solihull Town Centre. The village has local inns, Outstanding Ofsted rated George Fentham primary school, historic church with Norman origins, doctors surgery, an active sports and tennis club, gym and a railway station which links Birmingham New Street and International with London Euston. Junctions 5 and 6 of the local M42 lead to the Midlands motorway network, centres of commerce and culture, the NEC, International Airport and Railway station.


APPROACH

Via a stone driveway that enables off road parking with lawned foregarden. There is an enclosed storm porch entrance that leads to:-

ENTRANCE LOBBY

Stairs rising first floor landing, double panel radiator, ceiling, light point, doors to lounge and sitting room.

DUAL ASPECT LOUNGE

15' 9" (4.8M) X 10' 10" (3.3M) INTO BAY WINDOW

Open fireplace with cast iron woodburning stove, tiled hearth, single panel radiator, four wall light points, TV point, UPVC double glazed square bay window to front aspect. Archway through two:-

DINING ROOM

14' 9" (4.5M) X 8' 2" (2.5M)

Single panel radiator, two ceiling light points, UPVC double glazed window to the side aspect, UPVC double glazed sliding patio door to the garden, door to:-

KITCHEN

10' 10" (3.3M) X 8' 2" (2.5M)

A range of white wall and base units with rolltop worksurfaces, integrated four ring electric hob and double oven, space and plumbing for a dishwasher, stainless steel single drain sink unit, ceiling light point, tiling to splashbacks, window and door to covered utility and sitting room.

SITTING ROOM

15' 1" (4.6M) X 11' 10" (3.6M)

Cosy sitting room, single panel radiator, ceiling light point, exposed ceiling beams, UPVC double glazed window to the front aspect and under stairs storage cupboard.

COVERED UTILITY / LEAN-TO

18' 1" (5.5M) X 6' 7" (2M)

Space and plumbing for a washing machine and dryer, wall & base unit, tiled floor, door to downstairs, WC UPVC double glazed door and UPVC double glazed window to the garden, further glazed door leads to ground floor bedroom four.

CLOAKROOM – WC

Low level flush WC, ceiling, light point.


BEDROOM FOUR (GROUND FLOOR)

17' 1" (5.2M) X 9' 6" (2.9M)

Double panel radiator, ceiling light point, exposed ceiling beams double glazed window to the side, aspect and door to:-

ENSUITE

6' 11" (2.1M) X 7' 7" (2.3M)

Low-level flush WC, pedestal hand wash basin, shower enclosure with Mira thermostatic shower unit, tiling to splash prone areas, chrome towel radiator, ceiling light point, extractor fan and wall heater.

FIRST FLOOR LANDING

Ceiling light point, doors to bedroom one, bedroom two, bedrooms three and bathroom.

DUAL ASPECT BEDROOM ONE

12' 10" (3.9M) X 10' 10" (3.3M)

A range of built-in wardrobes and covered storage, two single panel radiators, ceiling light point, walk-in cupboard, UPVC double glazed windows to the front and rear aspect.

BEDROOM TWO (FRONT)

10' 2" (3.1M) X 12' 2" (3.7M) EXCLUDING WARDROBES

Fitted wardrobes and covered storage, ceiling light point, UPVC double glazed window to the front aspect.

BEDROOM THREE (REAR)

9' 6" (2.9M) X 8' 10" (2.7M) EXCLUDING WARDROBE

Fitted wardrobes and covered storage, UPVC double glazed window to the rear aspect.

BATHROOM

Three-piece suite comprising low level flush WC, pedestal hand wash basin, panelled bath with Mira thermostatic shower unit, tiling to splash prone areas, single panel radiator, chrome towel radiator, obscure UPVC double glazed window to the side aspect.

GARDEN

A paved patio leaves to a laid to lawn garden with neatly fenced perimeter. There is a large timber shed/workshop and gated access that leads to the front of the property.

TENURE

We have been advised that the property is Freehold. This is subject to verification by your solicitor.



Property data powered by Stand Out Property Manager

Mobile link

Scan this QR code to go directly to this property on your phone.

Contact the agent

Features

  • Delightful Double Fronted Cottage
  • Huge Potential for Enlargement (STPP)
  • Four Bedrooms
  • Three Reception Rooms
  • Close proximity to outstanding Ofsted rated George Fentham primary school
  • South Facing Garden
  • No Chain
  • *OPEN DAY SATURDAY 1ST APRIL 12-2.30PM (BY APPOINTMENT ONLY)*

Stamp duty estimate

Mortgage calculator

Similar properties

4 bedroom semi-detached house SSTC in Solihull - Photograph 1.
4 bedroom semi-detached house SSTC in Solihull - Photograph 3.
4 bedroom semi-detached house SSTC in Solihull - Photograph 4.
4 bedroom semi-detached house SSTC in Solihull - Photograph 10.
4 bedroom semi-detached house SSTC in Solihull - Photograph 5.
4 bedroom semi-detached house SSTC in Solihull - Photograph 2.
4 bedroom semi-detached house SSTC in Solihull - Photograph 6.
4 bedroom semi-detached house SSTC in Solihull - Photograph 7.
4 bedroom semi-detached house SSTC in Solihull - Photograph 8.
4 bedroom semi-detached house SSTC in Solihull - Photograph 9.
4 bedroom semi-detached house SSTC in Solihull - Photograph 11.
4 bedroom semi-detached house SSTC in Solihull - Floorplan 1.

Arrange a viewing

We treat your privacy seriously. We will never sell your information. We will never pass your information on to third parties without your consent, or use it for any reason other than those you allow.

Contains HM Land Registry data © Crown copyright and database right 2017. This data is licensed under the Open Government Licence v3.0.

Book a free market appraisal

Find out what your home is worth with our free, no obligation property appraisal.