Bartleys Estate Agents - Property details

Skip to content
31/12/2025
Featured property SSTC

Silhill Hall Road, Solihull, B91 5 bedroom detached house SSTC in Solihull

£875,000

5 bedrooms, 1 bathroom.


Tenure : Freehold
Council Tax Band :
Building Insurance : Not Set

Property reference: SOL-GF7125AGD4
Print property

Property overview

Introduction

Situated in one of the most sought after tree lined roads in Solihull an opportunity has arisen to purchase this spacious five bedroom detached requiring complete renovation/ refurbishment that sits within a large established plot offering tremendous scope for enlargement or redevelopment(STPP). The property requires updating & will appeal to somebody looking to put their stamp on a property on this premier road. The flexible accommodation on offer consists of a large entrance hall ,cloakroom/wc, two spacious principle reception rooms, breakfast kitchen, utility, five bedrooms, family bathroom, double garage, large established south facing garden. No Chain

Description

Situated in one of the most sought after tree lined roads in Solihull an opportunity has arisen to purchase this spacious five bedroom detached requiring complete renovation/ refurbishment that sits within a large established plot offering tremendous scope for enlargement or redevelopment(STPP). The property requires updating & will appeal to somebody looking to put their stamp on a property on this premier road. The flexible accommodation on offer consists of a large entrance hall, cloakroom/wc, two spacious principle reception rooms, breakfast kitchen, utility/wc, five bedrooms, family bathroom, double garage, large established south facing garden. No Chain 


The property sits back from the road behind a lawned foregarden with a deep sweeping driveway enabling off-road parking for several vehicles leading to a covered and glazed storm porch with glazed double front doors leading to:-

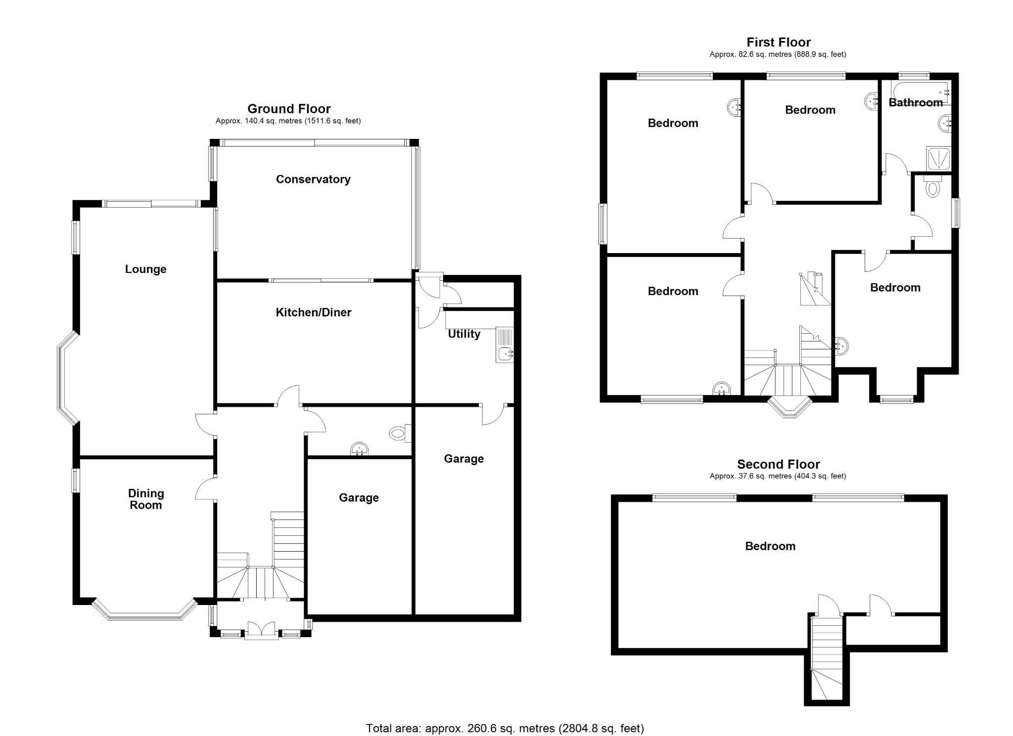
ENTRANCE HAL

Two double panel radiators, two wall light points, stairs rising to first floor landing, under stairs storage cupboard, doors radiating off to front and rear reception rooms, kitchen and cloakroom WC,.

CLOAKROOM WC

Low level flush WC, hand wash basin, complementary tiling to splash prone areas, extractor fan.

FRONT RECEPTION ROOM

15' 5" (4.7M) X 12' 6" (3.8M)

Ornamental fireplace with coal effect gas fire and marble hearth, single panel radiator, ceiling light point, UPVC double glazed bay window to the front aspect and UPVC double glaze window to the side aspect.

REAR RECEPTION ROOM

22' 8" (6.9M) X 14' 5" (4.4M)

Ornamental fireplace with electric fire insert, three wall light points, two double panel radiators, one single panel radiator, TV point, two ceiling light points, UPVC double glazed bay window to the side aspect, UPVC double glazed window to the side, full height UPVC double glazed sliding French doors to rear garden.

BREAKFAST KITCHEN

16' 9" (5.1M) X 11' 10" (3.6M)

A range of wall and base units with coordinated rolltop worksurfaces, stainless steel single drainer sink unit, integrated ceramic hob and Neff double oven, fridge, tiling to splash prone areas, ceiling spotlights, ceiling light point, double glazed sliding patio door to conservatory/lean- to and door to: -

UTILITY

8' 10" (2.7M) X 8' 2" (2.5M)

Stainless steel sink unit, wall and base units, skylight, wall mounted central heating boiler, space and plumbing for a washing machine, door to rear lobby leading to garden / WC, door to double garage.


FIRST FLOOR LANDING

Original stain glass picture bay window to the front aspect, doors radiating off to bedroom one, bedroom two, bedroom three, bedroom four, bathroom, separate WC, staircase leading to the second floor and bedroom five, single panel radiator.

BEDROOM ONE (FRONT)

12' 10" (3.9M) X 12' 6" (3.8M)

Single panel radiator, Victorian hand wash basin, ceiling light point, UPVC double glazed window to the front aspect.

BEDROOM TWO (REAR)

15' 5" (4.7M) X 12' 6" (3.8M)

Single panel radiator, ceiling light point, UPVC double glazed window to the rear aspect, pedestal hand wash basin.

BEDROOM THREE (REAR)

10' 10" (3.3M) X 10' 10" (3.3M)

Single panel radiator, ceiling light point, Victorian hand wash basin, UPVC double glazed window to the rear, built-in wardrobe.

BEDROOM FOUR (FRONT)

14' 5" (4.4M) X 8' 10" (2.7M)

Single panel radiator, ceiling light point, hand wash basin, UPVC double glazed window to the front aspect.

SEPARATE WC

Low-level flush WC, obscure UPVC double glazed window to the side aspect.

BATHROOM

Pedestal hand wash basin, shower enclosure with thermostatic shower unit, chrome towel radiator, complementary tyling to splash prone areas, ceiling light point, obscure UPVC double glazed window to the rear aspect.

BEDROOM FIVE (SECOND FLOOR)

30' 2" (9.2M) X 12' 2" (3.7M)

Two single panel radiators, two ceiling light points, full-width UPVC double glazed windows, storage beneath eaves.

GARDEN

The south facing garden has an L-shaped patio that stretches from the double gates at the front of the property and across the rear of the house. The garden is mainly laid to lawn with mature borders. There are a number of garden sheds and outbuildings to the side and rear of the property.

DOUBLE GARAGE

19' 4" (5.9M) X 16' 9" (5.1M)

Double doors to front aspect, power and lighting.



Property data powered by Stand Out Property Manager

Mobile link

Scan this QR code to go directly to this property on your phone.

Contact the agent

Features

  • Sought After Location
  • Scope For Enlargement (STPP)
  • Large Plot
  • Five Bedrooms
  • Two Large Reception Rooms
  • Breakfast Kitchen & Utility
  • Large South Facing Garden
  • Double Garage
  • No Chain

Stamp duty estimate

Mortgage calculator

Similar properties

5 bedroom detached house SSTC in Solihull - Photograph 1.
5 bedroom detached house SSTC in Solihull - Photograph 2.
5 bedroom detached house SSTC in Solihull - Photograph 3.
5 bedroom detached house SSTC in Solihull - Photograph 4.
5 bedroom detached house SSTC in Solihull - Photograph 5.
5 bedroom detached house SSTC in Solihull - Photograph 6.
5 bedroom detached house SSTC in Solihull - Photograph 7.
5 bedroom detached house SSTC in Solihull - Photograph 8.
5 bedroom detached house SSTC in Solihull - Photograph 9.
5 bedroom detached house SSTC in Solihull - Photograph 10.
5 bedroom detached house SSTC in Solihull - Photograph 11.
5 bedroom detached house SSTC in Solihull - Photograph 12.
5 bedroom detached house SSTC in Solihull - Photograph 13.
5 bedroom detached house SSTC in Solihull - Floorplan 1.

Arrange a viewing

We treat your privacy seriously. We will never sell your information. We will never pass your information on to third parties without your consent, or use it for any reason other than those you allow.

Contains HM Land Registry data © Crown copyright and database right 2017. This data is licensed under the Open Government Licence v3.0.

Book a free market appraisal

Find out what your home is worth with our free, no obligation property appraisal.